Seminole County Property Appraiser


2419 CHASE AVE SANFORD, FL 32771
NORRIS, ESSIE M
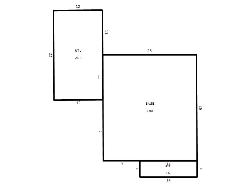
2026 Market $83,182 Assessed $35,789 Taxable $10,789
2025 Tax Bill $178.53 Tax Savings with Exemptions $1,321.38

Copyright 2026 © Seminole County Property Appraiser | Privacy Statement | Accessibility/Terms of Use | Translate

Follow us on our socials