Seminole County Property Appraiser


430 SANDRINGHAM CT WINTER SPRINGS, FL 32708
GUO, YAN; WANG, YANBIN
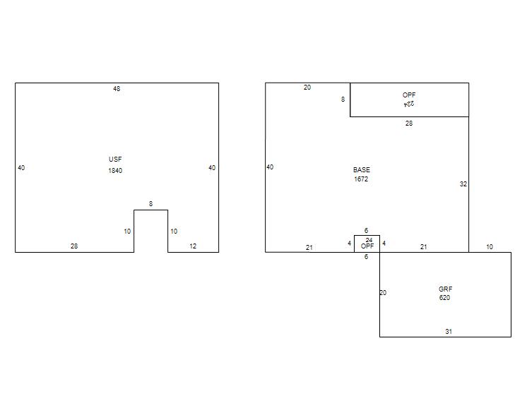
2026 Market $683,075 Assessed $444,522 Taxable $393,111
2025 Tax Bill $6,320.77 Tax Savings with Exemptions $7,563.74

Copyright 2026 © Seminole County Property Appraiser | Privacy Statement | Accessibility/Terms of Use | Translate

Follow us on our socials