Seminole County Property Appraiser


106 DES PINAR LN LONGWOOD, FL 32750
GOMEZ, GILBERT; GOMEZ, GERALDINE; STEVENS, YANELI
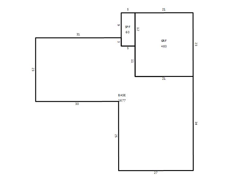
2026 Market $356,681 Assessed $340,797 Taxable $289,386
2025 Tax Bill $3,980.39 Tax Savings with Exemptions $833.15

Copyright 2026 © Seminole County Property Appraiser | Privacy Statement | Accessibility/Terms of Use | Translate

Follow us on our socials