Seminole County Property Appraiser


302 TEMPLE DR SANFORD, FL 32771
RODRIGUEZ, JOSE V; MUNDLOS, CLAUDIA
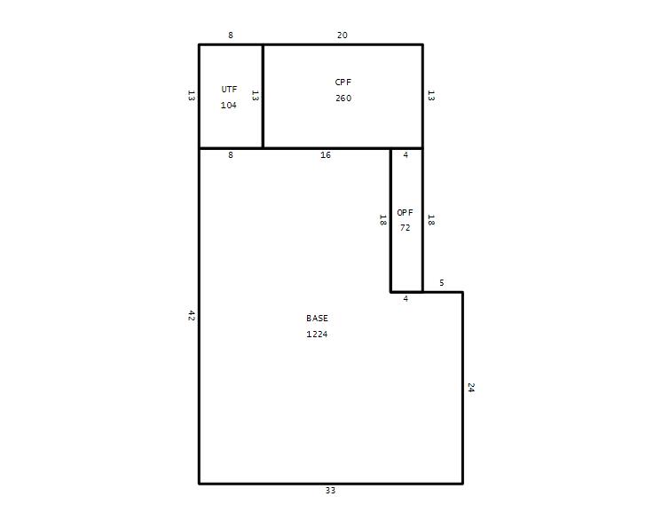
2026 Market $247,155 Assessed $247,155 Taxable $247,155
2025 Tax Bill $3,401.87

Copyright 2026 © Seminole County Property Appraiser | Privacy Statement | Accessibility/Terms of Use | Translate

Follow us on our socials