Seminole County Property Appraiser


2439 GRAND TETON CIR WINTER PARK, FL 32792
ZAKEN, DANIEL
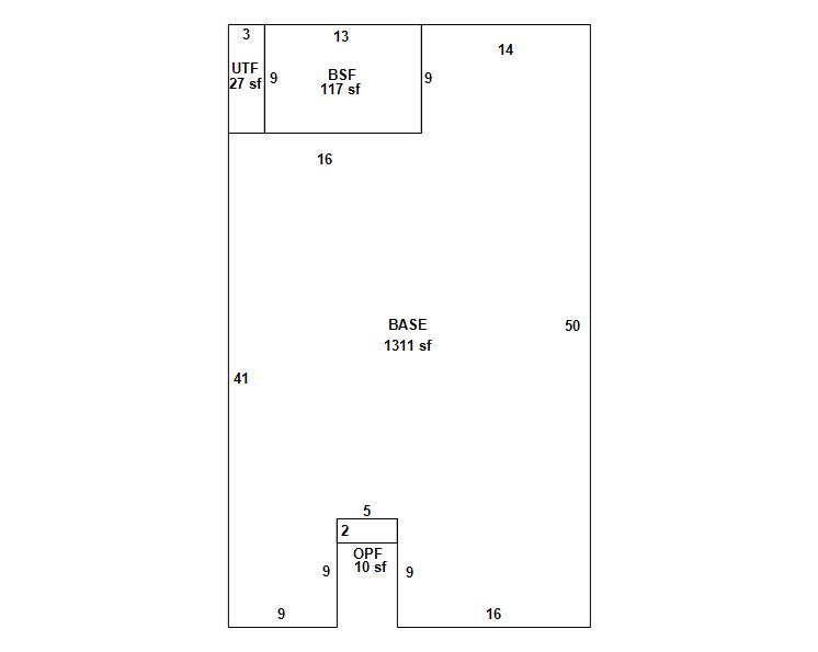
2026 Market $212,976 Assessed $212,976 Taxable $161,565
2025 Tax Bill $2,640.10 Tax Savings with Exemptions $558.82

Copyright 2026 © Seminole County Property Appraiser | Privacy Statement | Accessibility/Terms of Use | Translate

Follow us on our socials