Seminole County Property Appraiser


455 MCLAIN LN GENEVA, FL 32732
DIAZ, SCOTTY S JR; TRUJILLO, TAMARA M
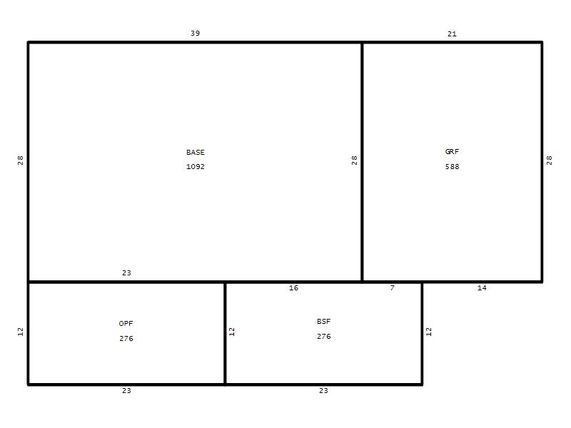
2026 Market $245,585 Assessed $154,954 Taxable $103,543
2025 Tax Bill $1,505.08 Tax Savings with Exemptions $1,859.58

Copyright 2026 © Seminole County Property Appraiser | Privacy Statement | Accessibility/Terms of Use | Translate

Follow us on our socials