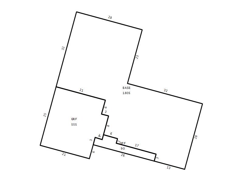
Seminole County Property Appraiser


222 TIMBERCOVE CIR LONGWOOD, FL 32779
MEDELLIN, MICHAEL; MEDELLIN, ELIZABETH
2026 Market $478,257 Assessed $478,257 Taxable $478,257
2025 Tax Bill $6,214.83

Copyright 2026 © Seminole County Property Appraiser | Privacy Statement | Accessibility/Terms of Use | Translate

Follow us on our socials