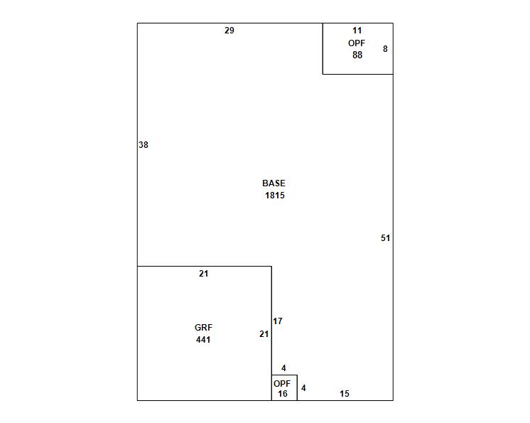
Seminole County Property Appraiser


4151 BASINSIDE CT SANFORD, FL 32771
PEREZ VALERO, MARIA E
2026 Market $352,517 Assessed $352,517 Taxable $301,106
2025 Tax Bill $4,213.26 Tax Savings with Exemptions $558.81

Copyright 2026 © Seminole County Property Appraiser | Privacy Statement | Accessibility/Terms of Use | Translate

Follow us on our socials