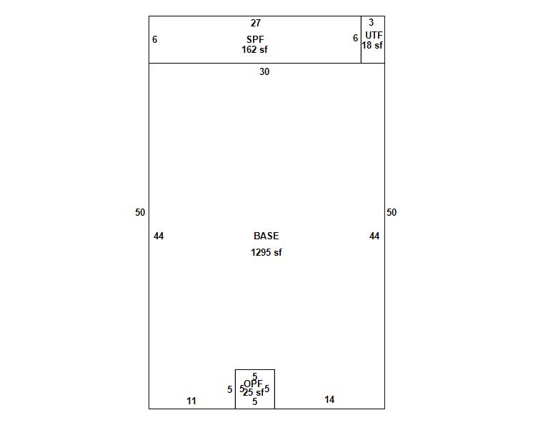
Seminole County Property Appraiser


2317 SUN VALLEY CIR WINTER PARK, FL 32792
FLTR LLC TR; LAND TRUST 007 TRUST
2026 Market $206,091 Assessed $206,091 Taxable $206,091
2025 Tax Bill $1,118.82 Tax Savings with Exemptions $1,976.68

Copyright 2026 © Seminole County Property Appraiser | Privacy Statement | Accessibility/Terms of Use | Translate

Follow us on our socials