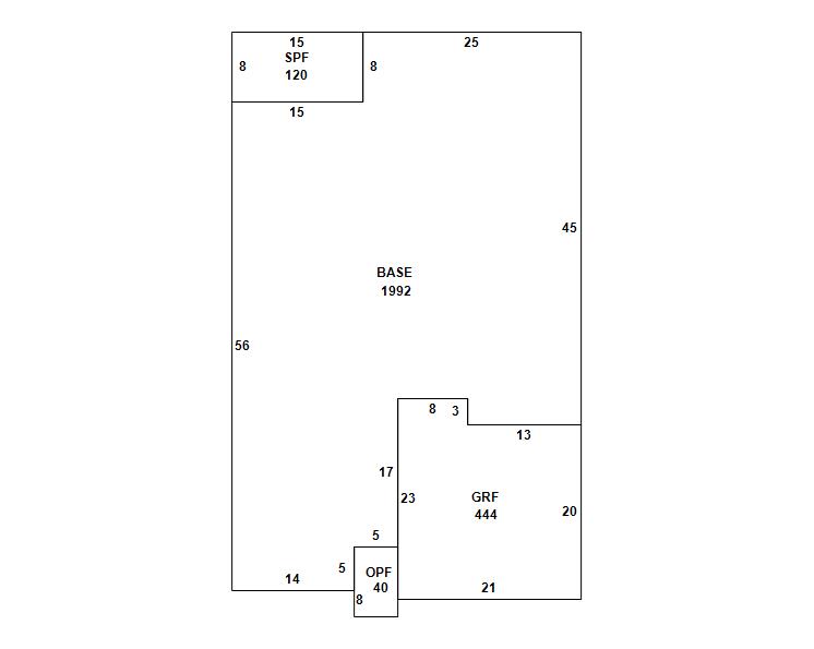
Seminole County Property Appraiser


5738 MAGNOLIA BLOOM TER OVIEDO, FL 32765
REDDINGTON, DENNIS ENH LIFE EST; REDDINGTON, JANET ENH LIFE EST
2026 Market $396,101 Assessed $197,658 Taxable $0
2025 Tax Bill $0.00 Tax Savings with Exemptions $5,528.81

Copyright 2026 © Seminole County Property Appraiser | Privacy Statement | Accessibility/Terms of Use | Translate

Follow us on our socials