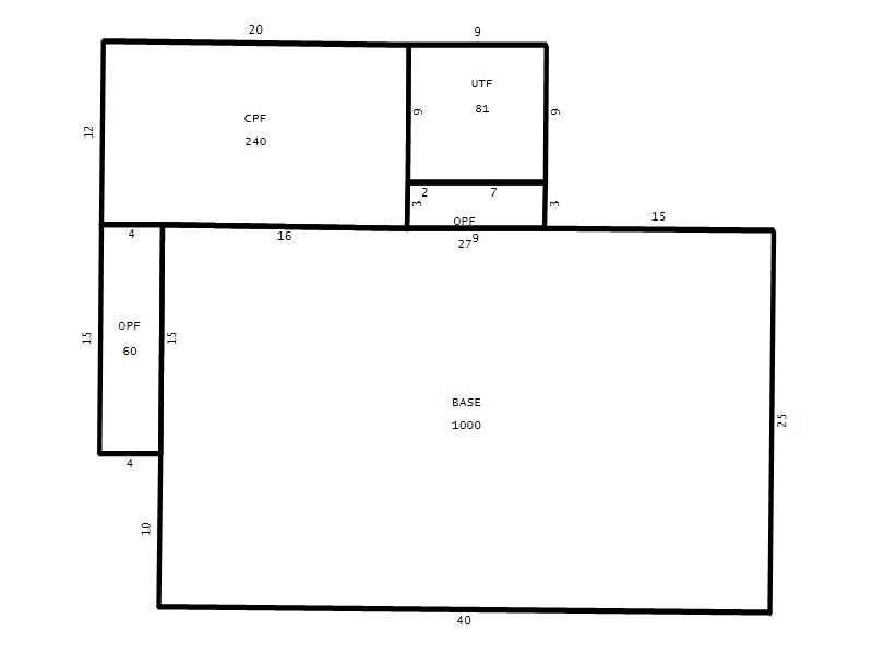
Seminole County Property Appraiser


2447 SANFORD AVE SANFORD, FL 32771
SANTOS, ROCIO
2026 Market $188,837 Assessed $188,837 Taxable $137,426
2025 Tax Bill $2,606.02 Tax Savings with Exemptions $784.50

Copyright 2026 © Seminole County Property Appraiser | Privacy Statement | Accessibility/Terms of Use | Translate

Follow us on our socials