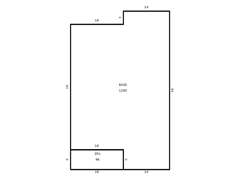
Seminole County Property Appraiser


608 E 14TH ST SANFORD, FL 32771
HOHMANN, CAROLYN ENH LIFE EST
2026 Market $151,290 Assessed $151,290 Taxable $94,879
2025 Tax Bill $2,769.87

Copyright 2026 © Seminole County Property Appraiser | Privacy Statement | Accessibility/Terms of Use | Translate

Follow us on our socials