Seminole County Property Appraiser


1902 DEERVIEW PL LONGWOOD, FL 32750
IDEHEN, JOHN O; IDEHEN, ROSELINE A
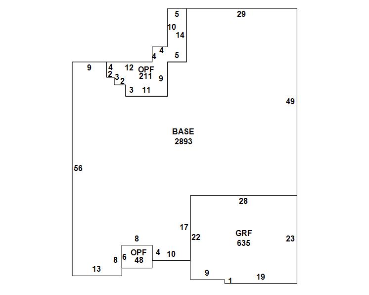
2026 Market $634,614 Assessed $398,363 Taxable $346,952
2025 Tax Bill $4,747.14 Tax Savings with Exemptions $3,940.26

Copyright 2026 © Seminole County Property Appraiser | Privacy Statement | Accessibility/Terms of Use | Translate

Follow us on our socials