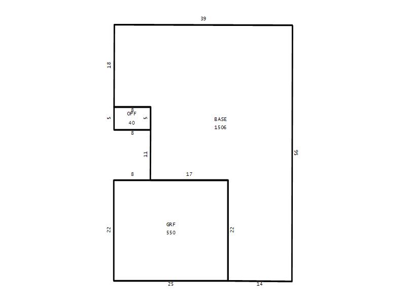
Seminole County Property Appraiser


1500 MEADOWLARK ST LONGWOOD, FL 32750
SIMMONS, CHRISTOPHER L; SIMMONS, JENNIFER R
2026 Market $269,025 Assessed $198,524 Taxable $147,113
2025 Tax Bill $2,459.60 Tax Savings with Exemptions $1,974.86

Copyright 2026 © Seminole County Property Appraiser | Privacy Statement | Accessibility/Terms of Use | Translate

Follow us on our socials