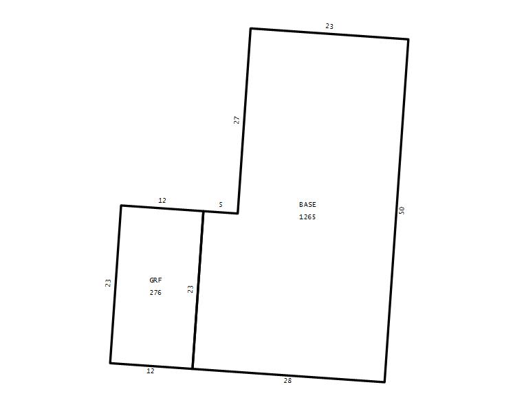
Seminole County Property Appraiser


1509 MOCKINGBIRD LN LONGWOOD, FL 32750
SCHWARTZ, DONNA L
2026 Market $234,141 Assessed $104,062 Taxable $52,651
2025 Tax Bill $960.03 Tax Savings with Exemptions $2,895.04

Copyright 2026 © Seminole County Property Appraiser | Privacy Statement | Accessibility/Terms of Use | Translate

Follow us on our socials