Seminole County Property Appraiser


2370 STONE ST OVIEDO, FL 32765
GRECA, ERICA; GRECA, AARON
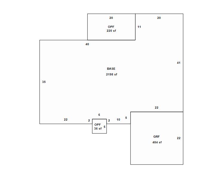
2026 Market $537,253 Assessed $287,322 Taxable $235,911
2025 Tax Bill $3,268.14 Tax Savings with Exemptions $4,094.17

Copyright 2026 © Seminole County Property Appraiser | Privacy Statement | Accessibility/Terms of Use | Translate

Follow us on our socials