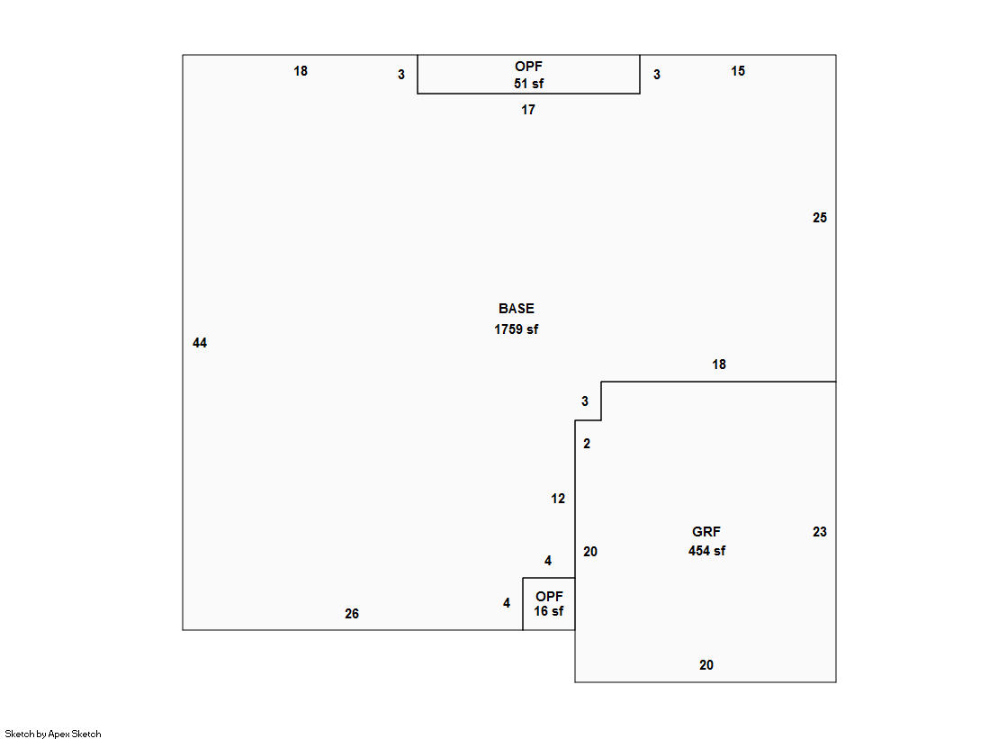
Seminole County Property Appraiser


3865 BISCAYNE DR WINTER SPRINGS, FL 32708
FRANKE, CLIFFORD R
2026 Market $310,368 Assessed $310,368 Taxable $310,368
2025 Tax Bill $4,265.45

Copyright 2026 © Seminole County Property Appraiser | Privacy Statement | Accessibility/Terms of Use | Translate

Follow us on our socials