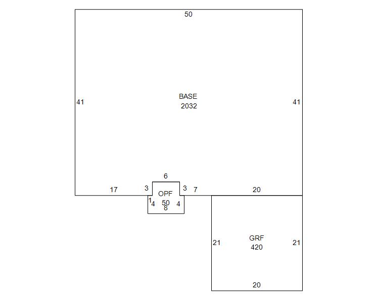
Seminole County Property Appraiser


3871 BISCAYNE DR WINTER SPRINGS, FL 32708
2017-1 IH BORROWER LP
2026 Market $371,299 Assessed $371,299 Taxable $371,299
2025 Tax Bill $5,073.25

Copyright 2026 © Seminole County Property Appraiser | Privacy Statement | Accessibility/Terms of Use | Translate

Follow us on our socials