Seminole County Property Appraiser


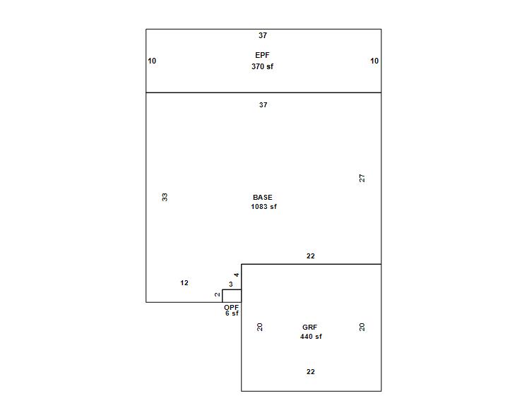
1189 LA MESA AVE WINTER SPRINGS, FL 32708
JONES, PHILLIP H; JONES, MARY E
2026 Market $287,610 Assessed $139,315 Taxable $87,904
2025 Tax Bill $1,296.77 Tax Savings with Exemptions $2,672.52

Copyright 2026 © Seminole County Property Appraiser | Privacy Statement | Accessibility/Terms of Use | Translate

Follow us on our socials