Seminole County Property Appraiser


3816 BLACK SPRUCE LN WINTER SPRINGS, FL 32708
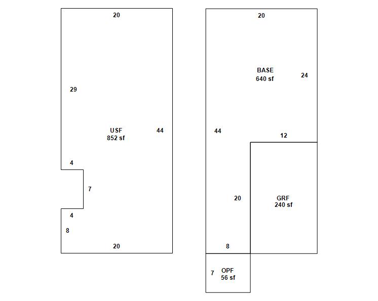
OPSAHL, ROBERT K
2026 Market $250,391 Assessed $250,391 Taxable $250,391
2025 Tax Bill $3,684.06

Copyright 2026 © Seminole County Property Appraiser | Privacy Statement | Accessibility/Terms of Use | Translate

Follow us on our socials