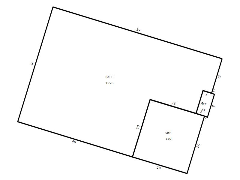
Seminole County Property Appraiser


1644 PINE BAY DR LAKE MARY, FL 32746
RESICAP FLORIDA OWNER 11 LLC
2026 Market $408,216 Assessed $408,216 Taxable $408,216
2025 Tax Bill $6,023.92

Copyright 2026 © Seminole County Property Appraiser | Privacy Statement | Accessibility/Terms of Use | Translate

Follow us on our socials