Seminole County Property Appraiser


3617 S ST LUCIE DR CASSELBERRY, FL 32707
ROBINSON, ALICIA; ROBINSON, ORAN S III
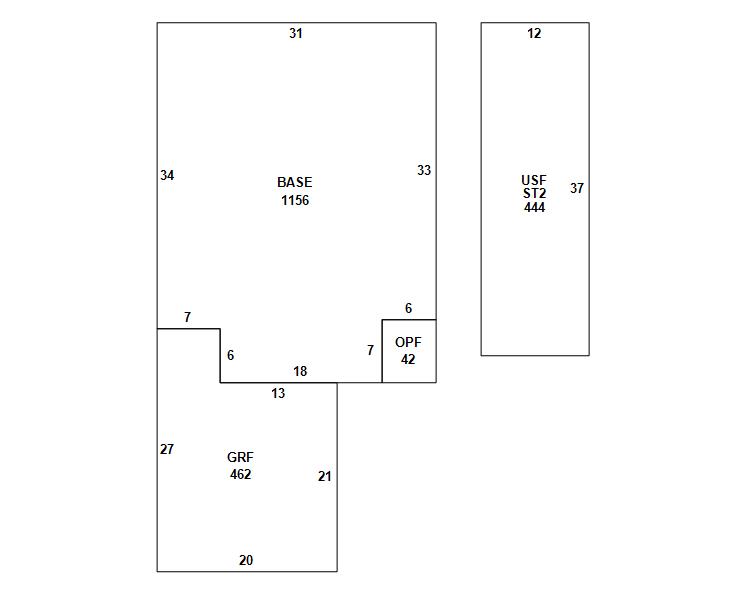
2026 Market $327,346 Assessed $228,959 Taxable $177,548
2025 Tax Bill $2,490.78 Tax Savings with Exemptions $1,997.05

Copyright 2026 © Seminole County Property Appraiser | Privacy Statement | Accessibility/Terms of Use | Translate

Follow us on our socials