Seminole County Property Appraiser


846 N JERICO DR CASSELBERRY, FL 32707
HOPKINS, MATTHEW N
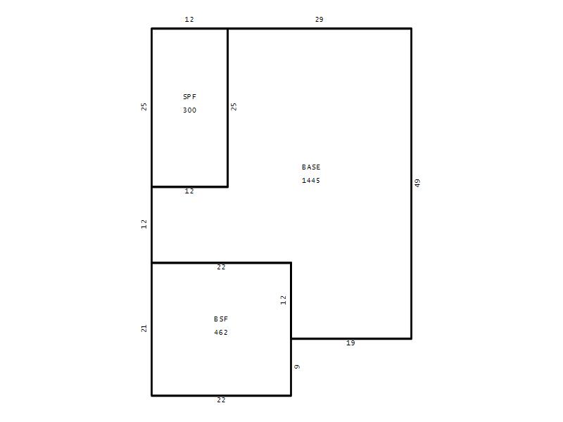
2026 Market $337,778 Assessed $142,263 Taxable $90,852
2025 Tax Bill $1,336.04 Tax Savings with Exemptions $3,305.74

Copyright 2026 © Seminole County Property Appraiser | Privacy Statement | Accessibility/Terms of Use | Translate

Follow us on our socials