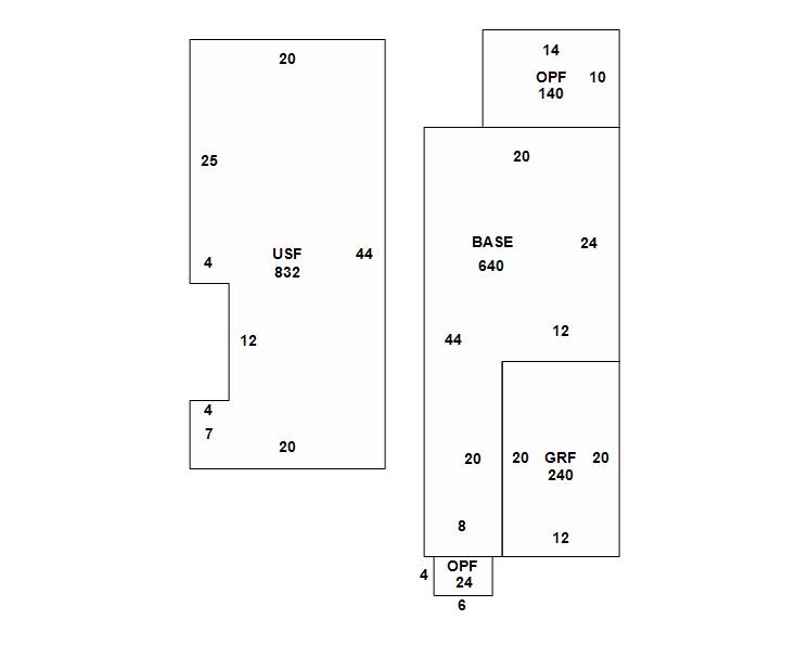
Seminole County Property Appraiser


178 MITCHELL CREEK WAY OVIEDO, FL 32765
SINDONE, ROSE M; SINDONE, MICHAEL A
2026 Market $303,566 Assessed $303,566 Taxable $303,566
2025 Tax Bill $5,314.24

Copyright 2026 © Seminole County Property Appraiser | Privacy Statement | Accessibility/Terms of Use | Translate

Follow us on our socials