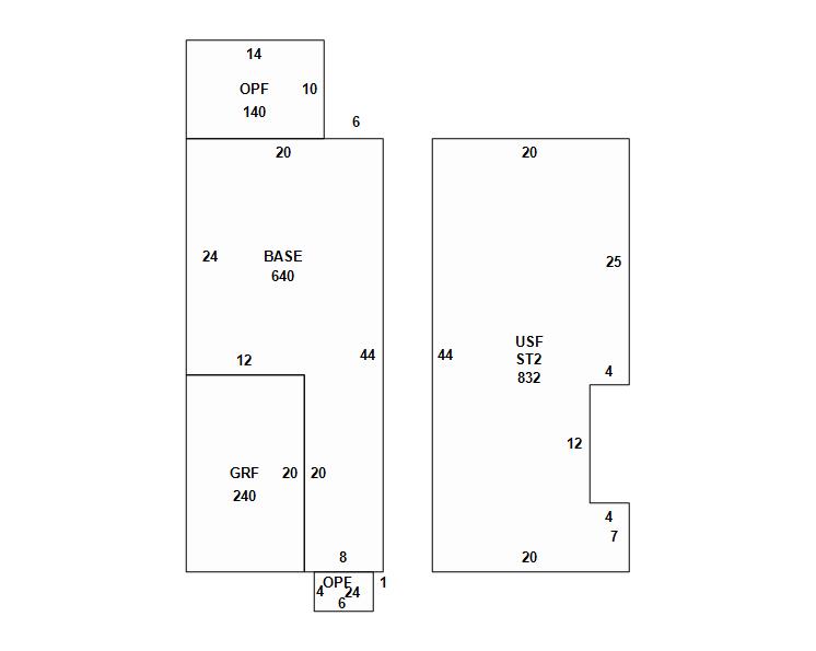
Seminole County Property Appraiser


141 MITCHELL CREEK WAY OVIEDO, FL 32765
SOYKAN, BULENT; SOYKAN, YESIM
2026 Market $303,566 Assessed $303,566 Taxable $252,155
2025 Tax Bill $5,314.24

Copyright 2026 © Seminole County Property Appraiser | Privacy Statement | Accessibility/Terms of Use | Translate

Follow us on our socials