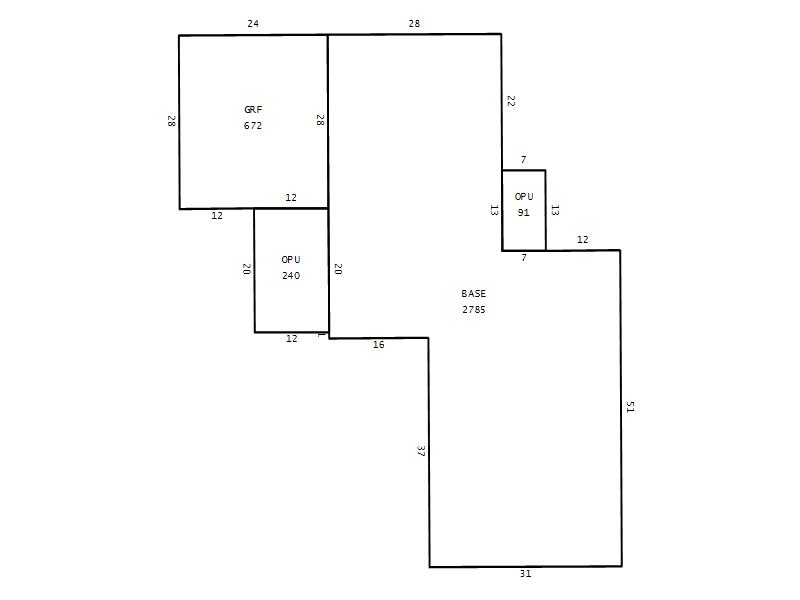
Seminole County Property Appraiser


108 SPRING VALLEY LOOP ALTAMONTE SPRINGS, FL 32714
P&C PROPERTIES ONE LLC
2026 Market $449,628 Assessed $449,628 Taxable $449,628
2025 Tax Bill $6,391.99

Copyright 2026 © Seminole County Property Appraiser | Privacy Statement | Accessibility/Terms of Use | Translate

Follow us on our socials