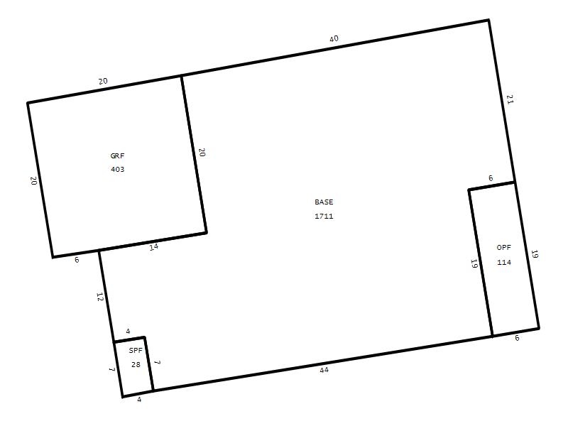
Seminole County Property Appraiser


853 SHELL LN LONGWOOD, FL 32750
JONES LIVING TRUST
2026 Market $346,321 Assessed $157,755 Taxable $106,344
2025 Tax Bill $1,542.39 Tax Savings with Exemptions $3,360.04

Copyright 2026 © Seminole County Property Appraiser | Privacy Statement | Accessibility/Terms of Use | Translate

Follow us on our socials