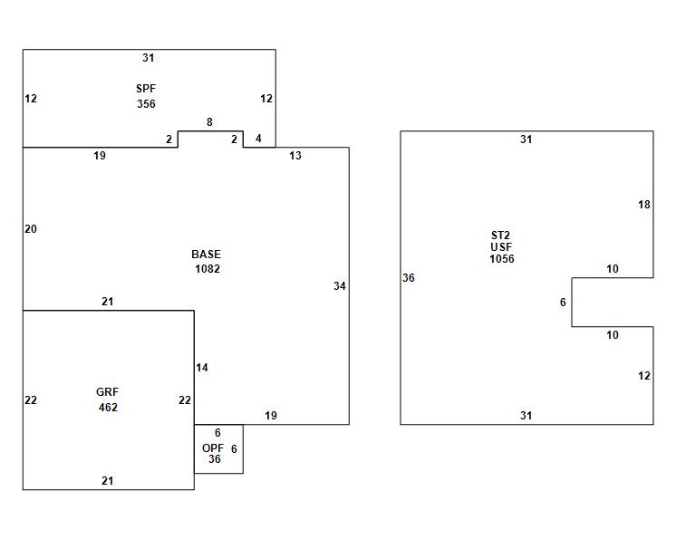
Seminole County Property Appraiser


715 SILVER BIRCH PL LONGWOOD, FL 32750
IH6 PROP FL LP
2026 Market $384,394 Assessed $384,394 Taxable $384,394
2025 Tax Bill $5,430.97

Copyright 2026 © Seminole County Property Appraiser | Privacy Statement | Accessibility/Terms of Use | Translate

Follow us on our socials