Seminole County Property Appraiser


236 SILK BAY PL LONGWOOD, FL 32750
MURRAY, MARK F; MURRAY, OLIVIA L
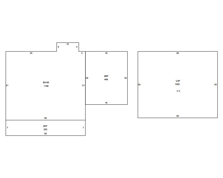
2026 Market $423,971 Assessed $423,971 Taxable $367,560
2025 Tax Bill $5,304.62 Tax Savings with Exemptions $627.21

Copyright 2026 © Seminole County Property Appraiser | Privacy Statement | Accessibility/Terms of Use | Translate

Follow us on our socials