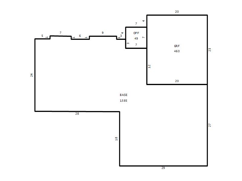
Seminole County Property Appraiser


1255 CARDINAL CT ALTAMONTE SPRINGS, FL 32714
SUAREZ, SONIA H; GARCIA, YOSMANY P
2026 Market $319,407 Assessed $319,407 Taxable $267,996
2025 Tax Bill $1,184.52 Tax Savings with Exemptions $3,167.02

Copyright 2026 © Seminole County Property Appraiser | Privacy Statement | Accessibility/Terms of Use | Translate

Follow us on our socials