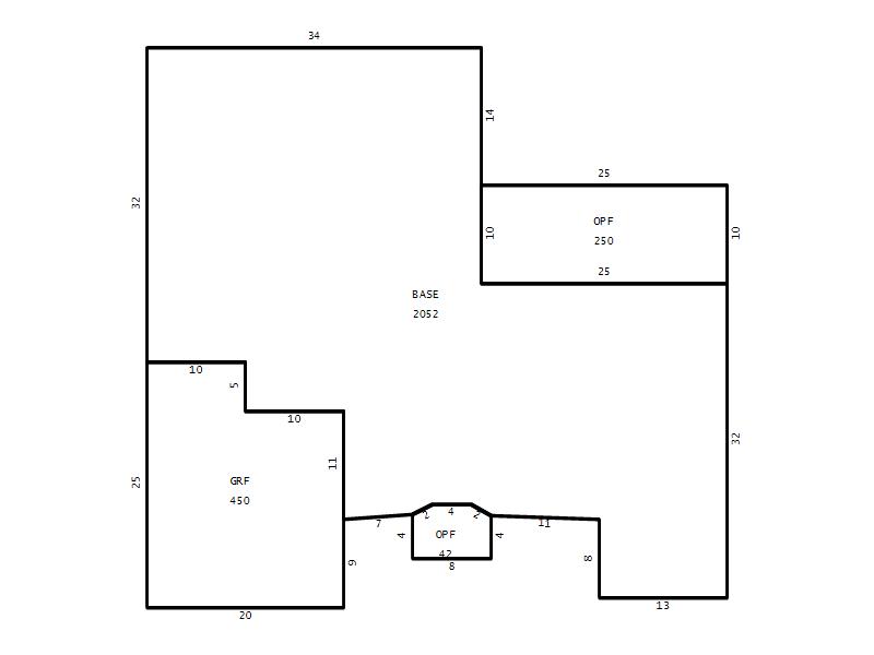
Seminole County Property Appraiser


1546 THORNHILL CIR OVIEDO, FL 32765
CASSO, JESSICA I; PETERS, JASON L
2026 Market $449,050 Assessed $449,050 Taxable $397,639
2025 Tax Bill $2,437.37 Tax Savings with Exemptions $2,597.98

Copyright 2026 © Seminole County Property Appraiser | Privacy Statement | Accessibility/Terms of Use | Translate

Follow us on our socials