Seminole County Property Appraiser


1414 LA PALOMA CIR WINTER SPRINGS, FL 32708
BERMUDEZ, WALTER J; ISAZA, MARIA A
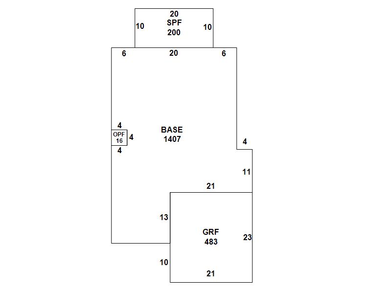
2026 Market $326,700 Assessed $235,660 Taxable $184,249
2025 Tax Bill $2,580.03 Tax Savings with Exemptions $1,927.61

Copyright 2026 © Seminole County Property Appraiser | Privacy Statement | Accessibility/Terms of Use | Translate

Follow us on our socials