Seminole County Property Appraiser


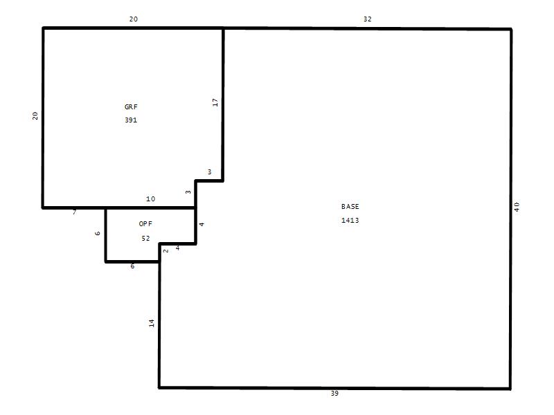
385 HANGING MOSS CIR LAKE MARY, FL 32746
MILLER, GAIL Y ENH LIFE EST
2026 Market $311,778 Assessed $154,079 Taxable $92,668
2025 Tax Bill $1,420.39 Tax Savings with Exemptions $3,195.70

Copyright 2026 © Seminole County Property Appraiser | Privacy Statement | Accessibility/Terms of Use | Translate

Follow us on our socials