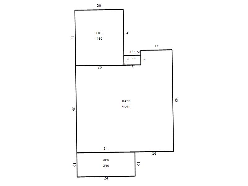
Seminole County Property Appraiser


763 BIRGHAM PL LAKE MARY, FL 32746
KATUMU, JOSIAH K; KATUMU, QUIANA M
2026 Market $315,018 Assessed $315,018 Taxable $263,607
2025 Tax Bill $4,062.23 Tax Savings with Exemptions $558.81

Copyright 2026 © Seminole County Property Appraiser | Privacy Statement | Accessibility/Terms of Use | Translate

Follow us on our socials