Seminole County Property Appraiser


489 WHITTINGHAM PL LAKE MARY, FL 32746
RANDLOV, PETER C; RANDLOV, PAMELA A
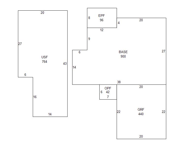
2026 Market $345,812 Assessed $170,000 Taxable $118,589
2025 Tax Bill $1,705.49 Tax Savings with Exemptions $3,351.34

Copyright 2026 © Seminole County Property Appraiser | Privacy Statement | Accessibility/Terms of Use | Translate

Follow us on our socials