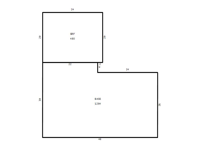
Seminole County Property Appraiser


2880 N BERMUDA AVE APOPKA, FL 32703
LEVENTHAL, AARON S; RIVERA PONCE, NATHALIE A
2026 Market $273,973 Assessed $273,973 Taxable $273,973
2025 Tax Bill $3,752.89

Copyright 2026 © Seminole County Property Appraiser | Privacy Statement | Accessibility/Terms of Use | Translate

Follow us on our socials