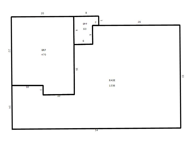
Seminole County Property Appraiser


2949 S BERMUDA AVE APOPKA, FL 32703
SPAGNOL, KARL; SPAGNOL, CHARLES; SPAGNOL, JOSETTE C
2026 Market $268,374 Assessed $199,248 Taxable $159,187
2025 Tax Bill $2,249.81 Tax Savings with Exemptions $1,425.71

Copyright 2026 © Seminole County Property Appraiser | Privacy Statement | Accessibility/Terms of Use | Translate

Follow us on our socials