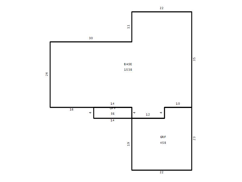
Seminole County Property Appraiser


3051 ANASTASIA CT APOPKA, FL 32703
HAWKINS, MICHAEL; JONES, MICHELLE
2026 Market $306,810 Assessed $223,732 Taxable $172,321
2025 Tax Bill $2,421.16 Tax Savings with Exemptions $1,781.69

Copyright 2026 © Seminole County Property Appraiser | Privacy Statement | Accessibility/Terms of Use | Translate

Follow us on our socials