Seminole County Property Appraiser


3153 S ORLEANS WAY APOPKA, FL 32703
LEE, DENNIS M; LEE, JUDITH A
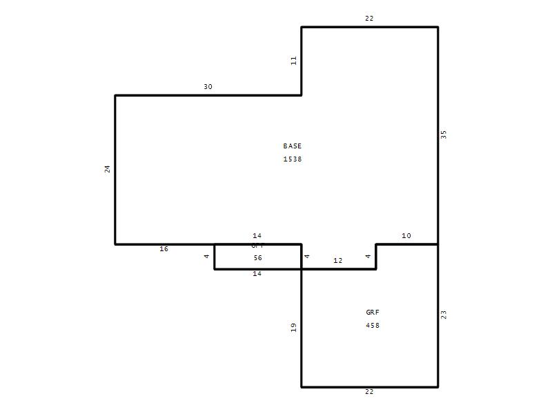
2026 Market $308,460 Assessed $129,731 Taxable $78,320
2025 Tax Bill $1,169.12 Tax Savings with Exemptions $3,048.77

Copyright 2026 © Seminole County Property Appraiser | Privacy Statement | Accessibility/Terms of Use | Translate

Follow us on our socials