Seminole County Property Appraiser


3161 S ORLEANS WAY APOPKA, FL 32703
BENTON, BRIAN O; CHANOWSKA, MONIKA A
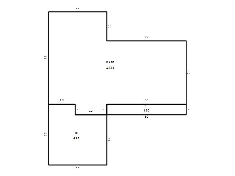
2026 Market $311,844 Assessed $228,296 Taxable $176,885
2025 Tax Bill $2,481.95 Tax Savings with Exemptions $1,794.90

Copyright 2026 © Seminole County Property Appraiser | Privacy Statement | Accessibility/Terms of Use | Translate

Follow us on our socials