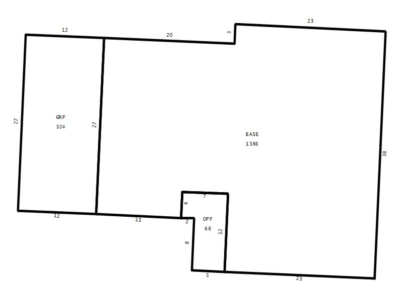
Seminole County Property Appraiser


1026 JEROME WAY APOPKA, FL 32703
POLSTON, CONNIE F; POLSTON, ERIC G
2026 Market $240,754 Assessed $240,754 Taxable $189,343
2025 Tax Bill $2,755.08 Tax Savings with Exemptions $558.81

Copyright 2026 © Seminole County Property Appraiser | Privacy Statement | Accessibility/Terms of Use | Translate

Follow us on our socials