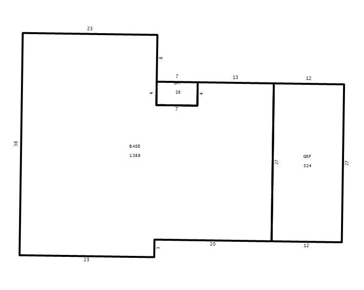
Seminole County Property Appraiser


3212 TIMOTHY ST APOPKA, FL 32703
WELCH, CONNIE S
2026 Market $241,869 Assessed $241,869 Taxable $190,458
2025 Tax Bill $2,766.23 Tax Savings with Exemptions $558.81

Copyright 2026 © Seminole County Property Appraiser | Privacy Statement | Accessibility/Terms of Use | Translate

Follow us on our socials