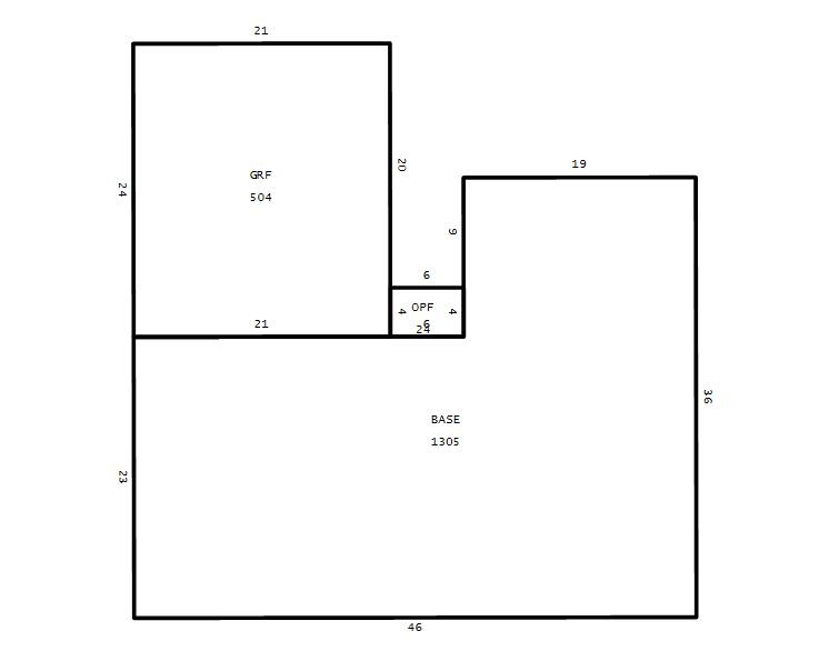
Seminole County Property Appraiser


3302 EVERETT ST APOPKA, FL 32703
HOECKENDORF, EDWIN R ENH LIFE EST; HOECKENDORF, CLEVA R ENH LIFE EST
2026 Market $240,856 Assessed $106,474 Taxable $55,063
2025 Tax Bill $859.36 Tax Savings with Exemptions $2,455.94

Copyright 2026 © Seminole County Property Appraiser | Privacy Statement | Accessibility/Terms of Use | Translate

Follow us on our socials