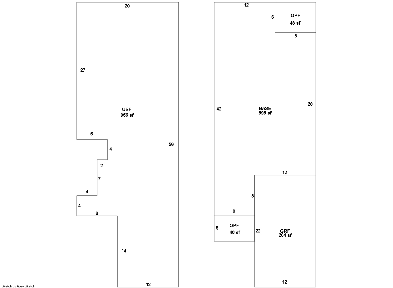
Seminole County Property Appraiser


386 REED GRASS DR OVIEDO, FL 32765
HADEGHI, VIYAN
2026 Market $329,762 Assessed $305,832 Taxable $254,421
2025 Tax Bill $4,280.45 Tax Savings with Exemptions $1,077.23

Copyright 2026 © Seminole County Property Appraiser | Privacy Statement | Accessibility/Terms of Use | Translate

Follow us on our socials