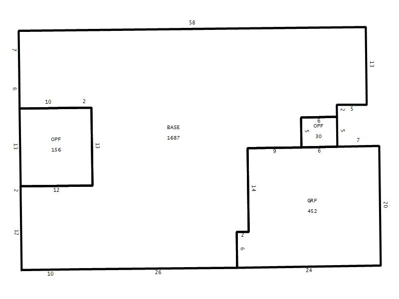
Seminole County Property Appraiser


1314 MEGAN WAY APOPKA, FL 32703
BUSSIERE, PETER
2026 Market $359,809 Assessed $311,310 Taxable $259,899
2025 Tax Bill $4,916.96

Copyright 2026 © Seminole County Property Appraiser | Privacy Statement | Accessibility/Terms of Use | Translate

Follow us on our socials