Seminole County Property Appraiser


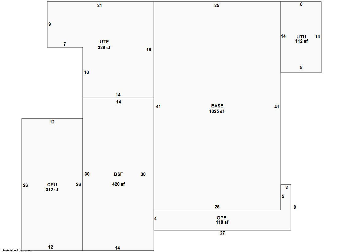
511 W LAKE BRANTLEY RD ALTAMONTE SPRINGS, FL 32714
LLAURADO-CLARK, KELLY M; CLARK, LARRY L
2026 Market $309,472 Assessed $116,326 Taxable $64,915
2025 Tax Bill $990.58 Tax Savings with Exemptions $3,255.27

Copyright 2026 © Seminole County Property Appraiser | Privacy Statement | Accessibility/Terms of Use | Translate

Follow us on our socials