Seminole County Property Appraiser


1030 PIONEER WAY GENEVA, FL 32732
GALATI, DAWN L
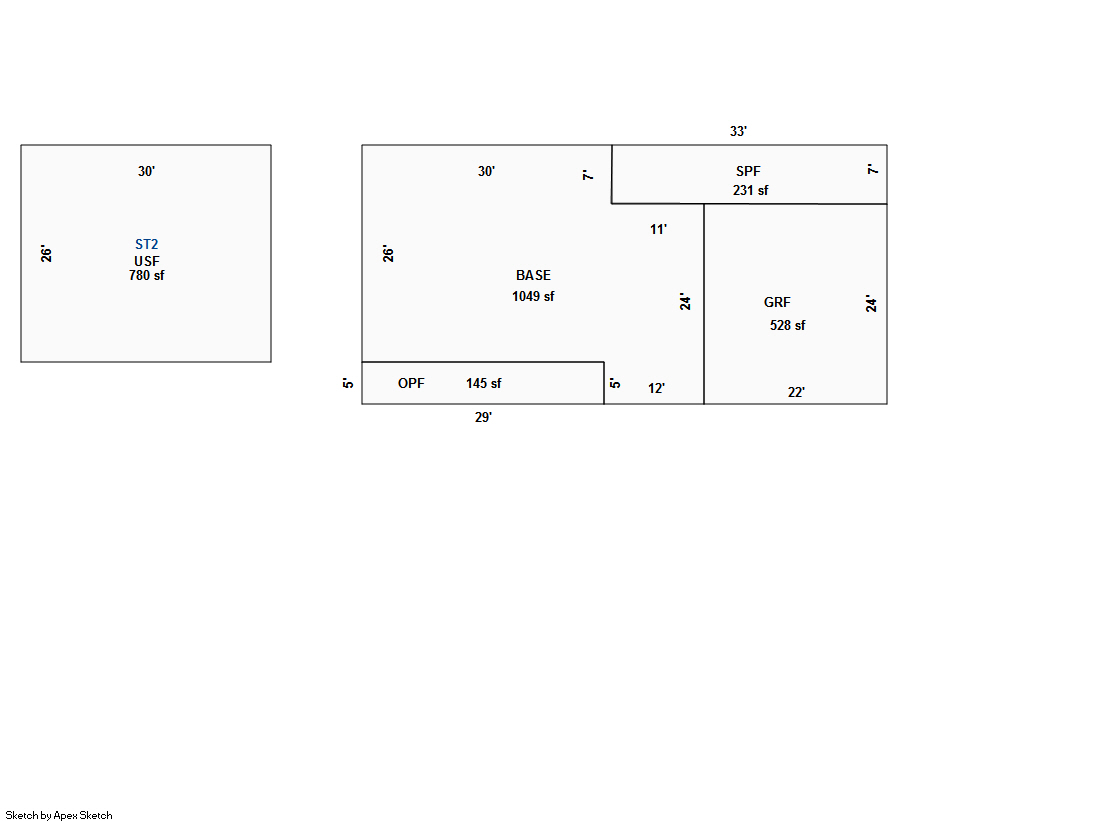
2026 Market $452,272 Assessed $177,476 Taxable $121,065
2025 Tax Bill $1,736.66 Tax Savings with Exemptions $4,051.31

Copyright 2026 © Seminole County Property Appraiser | Privacy Statement | Accessibility/Terms of Use | Translate

Follow us on our socials