Seminole County Property Appraiser


107 FAIRWAY TEN DR CASSELBERRY, FL 32707
MIRANDA, KEENAN; MIRANDA, DAYANA L
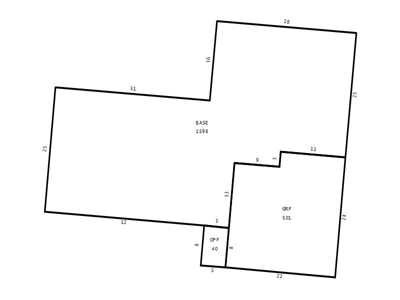
2026 Market $340,420 Assessed $215,953 Taxable $164,542
2025 Tax Bill $2,317.55 Tax Savings with Exemptions $2,341.35

Copyright 2026 © Seminole County Property Appraiser | Privacy Statement | Accessibility/Terms of Use | Translate

Follow us on our socials