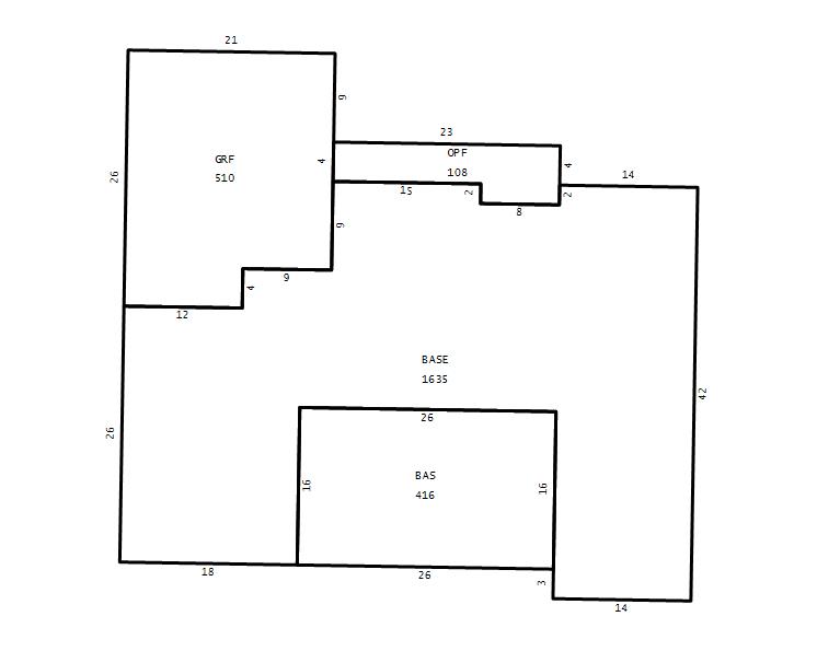
Seminole County Property Appraiser


1573 CANTERBURY CIR CASSELBERRY, FL 32707
NANCY J ANDERSON REV TRUST
2026 Market $367,020 Assessed $148,327 Taxable $96,916
2025 Tax Bill $1,838.65 Tax Savings with Exemptions $4,870.48

Copyright 2026 © Seminole County Property Appraiser | Privacy Statement | Accessibility/Terms of Use | Translate

Follow us on our socials