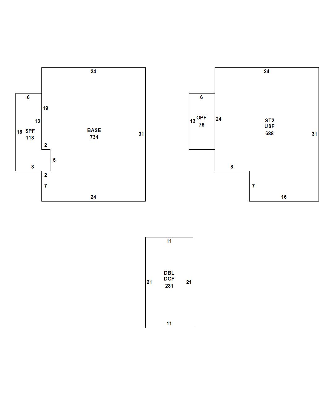
Seminole County Property Appraiser


404 S NETHERWOOD CRES ALTAMONTE SPRINGS, FL 32714
TALBERT, PAIGE
2026 Market $177,905 Assessed $169,972 Taxable $118,561
2025 Tax Bill $2,151.52 Tax Savings with Exemptions $1,327.28

Copyright 2026 © Seminole County Property Appraiser | Privacy Statement | Accessibility/Terms of Use | Translate

Follow us on our socials